VỊ TRÍ DỰ ÁN
Vinhomes Green City Hậu Nghĩa
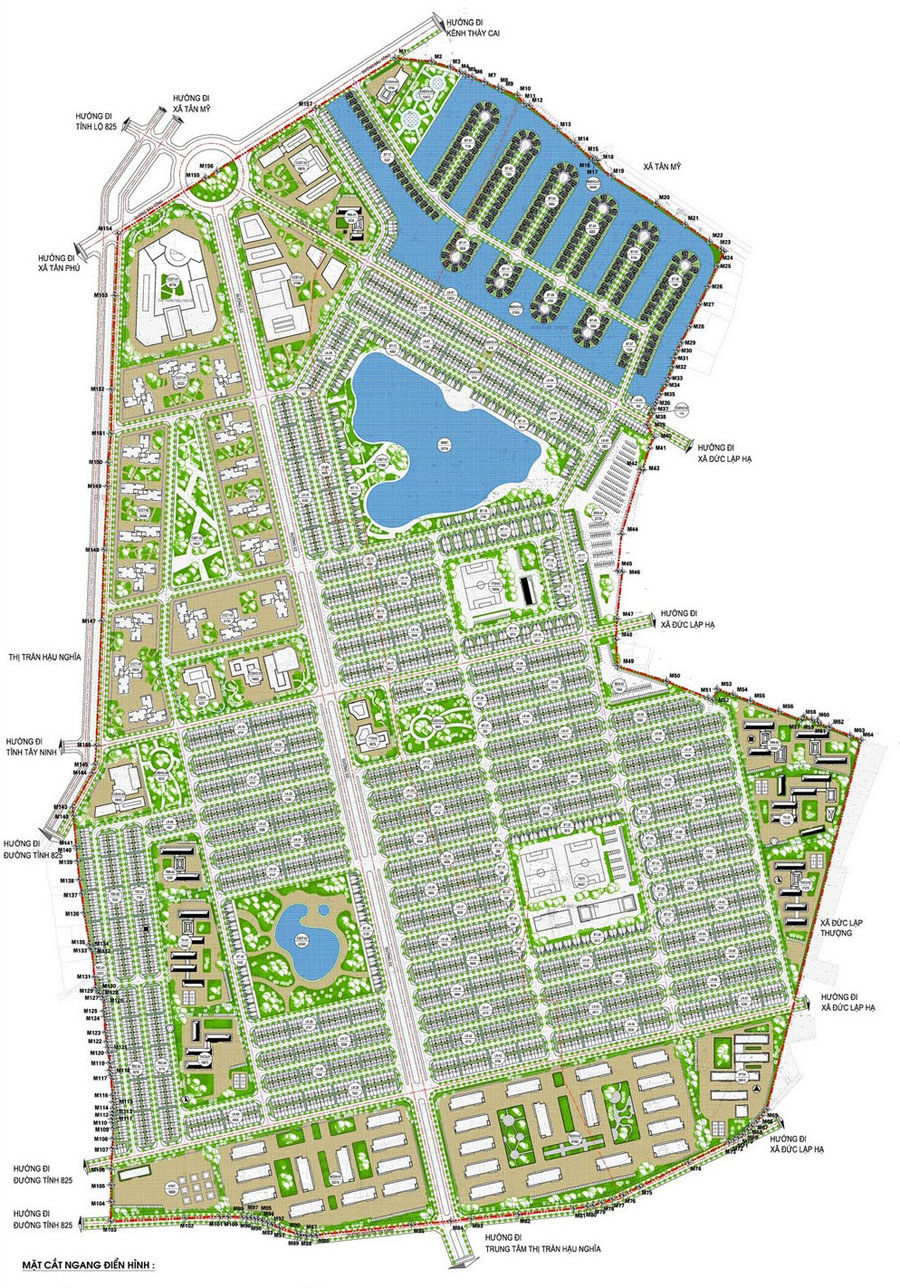
Vinhomes Green City Hậu Nghĩa được thực hiện tại thị trấn Hậu Nghĩa, xã Đức Lập Thượng và xã Tân Mỹ, huyện Đức Hòa, tỉnh Long An.
Các hướng tiếp giáp của khu đất dự án:
- Phía Bắc: giáp với khu dân cư hiện trạng trục đường Bàu Công
- Phía Nam: giáp với khu dân cư hiện trạng trục đường Nguyễn Thị Hạnh
- Phía Đông: giáp với khu dân cư hiện trạng xã Đức Lập Thượng
- Phía Tây: giáp khu dân cư hiện trạng thị trấn Hậu Nghĩa và khu dân cư trục đường quốc lộ N2
TIẾP CẬN DỄ DÀNG:
- Cách Bệnh viện Đa khoa khu vực Hậu Nghĩa 3km
- Cách thị trấn Đức Hòa 13km.
- Cách TP. HCM 40km.
- Cách Tây Ninh 40km.
- …
Vị trí của Vinhomes Green City được đánh giá ĐẮC ĐỊA khi nằm trong khu dân cư hiện hữu, gần các tiện ích ngoại khu và gần các tuyến đường lớn của khu vực.

















